Tailored Opportunities
at WHA Bangna Business Complex

Flexible Office Spaces for Lease at Bangna-Trad KM.7
WHA Bangna Business Complex at Bangna-Trad KM.7 hosts modern office spaces, ready for growing companies seeking flexible configurations and leases. Create the office you want with floorspaces primed for personalizing detail.
Open the door to opportunities at these Samut Prakan premises, easily accessible to
Close to busy commercial centers and Mega Bangna,
With plenty of direct thoroughfares, public transport and international school and universities, WHA Bangna Business Complex lies at the juncture of working convenience and ease.

Contact Us to Arrange a Visit Today
WHA Office Solutions Offers
- Extensive Experience in Developing and Managing a Wide Variety of Property Types
- Innovation and Technology to Create a Smart Workplace
- Best Security and Safety Features

Building Features at WHA Bangna Business Complex
Located at Bangna-Trad KM.7, WHA Bangna Business Complex is the accessible and tailored address for your business operations.
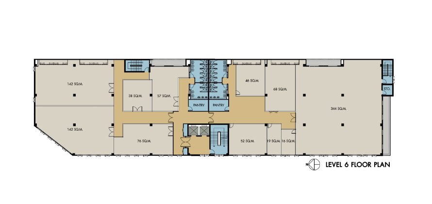
Floor Plan
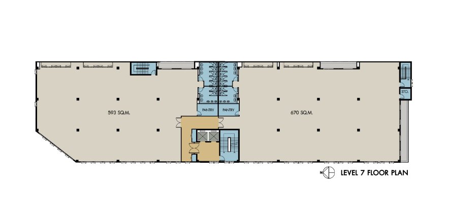
Floor Plan
Advancing Operations from Bangna–Trad, Samut Prakan
Tailor your working space to your specifications at WHA Bangna Business Complex. Offering personalized configurations in office suites for partitions, furnishings, electrical wiring, internet, air-conditioning, and ceiling and tile interiors, these premises can be widely adapted to embody your business.
In a low-rise building of 7 levels, feel grounded in the solid build and high-quality interior materials, set with plentiful natural light and regional views. With neat outdoor landscape and clean internal spaces, enter a calm professional zone and allow business ideas to develop and grow.
Moments outside WHA Bangna Business Complex are a range of food and retail options, fromwell-established favorites to locally-run places at Thai Watsadu, Mega Bangna and surrounding streets.













